公益社団法人 滋賀県宅地建物取引業協会会員 滋賀県知事(5)第3035号 建設業:滋賀県知事(般-4)22813号
Life Agent Service
![]()
| |||||||||||||||||||||||||||||||||||||||||||||||||||||||||
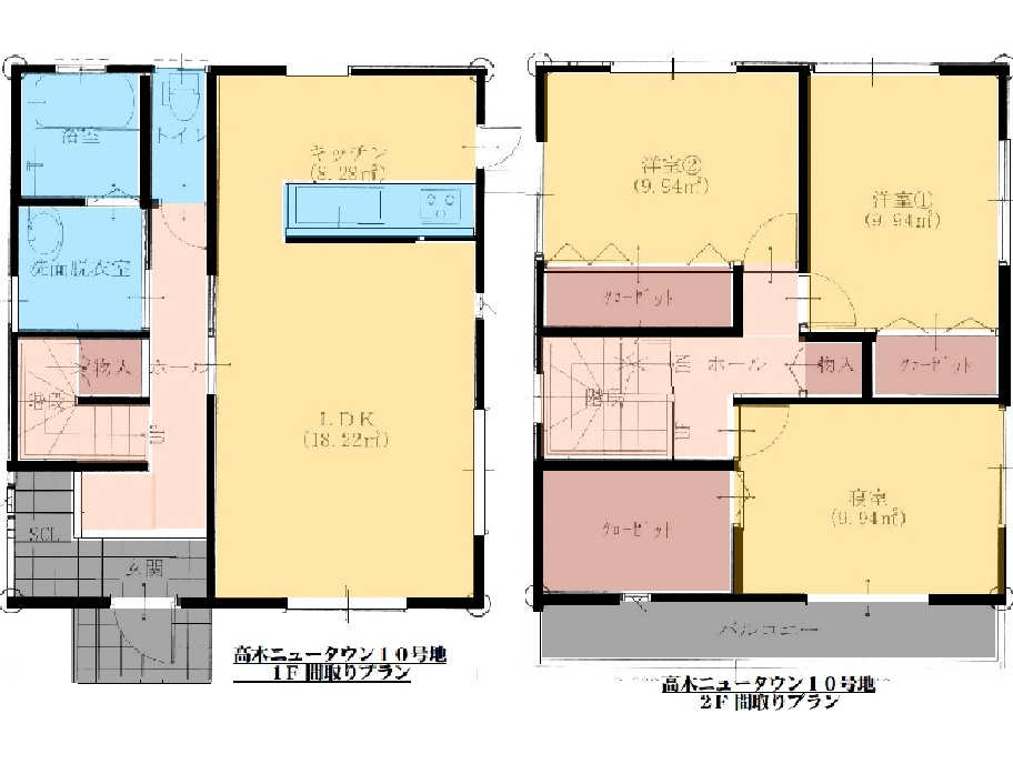
| 所在地:野洲市高木10号地 | 宅地面積:177.04㎡(53.55坪)土地価額:1,580万円 |
| 3m通路は色々な用途に使え、低燃費ハウスの2世帯同居型シンプルモダン住宅 | |
|
容積率:200% 建蔽率:60% |
建物面積:124.20㎡(37.50坪) |
|
建物価額 : |
2,512万円~ |
| 所在地:野洲市高木10号地 | 宅地面積:177.04㎡(53.55坪)土地価額:1,580万円 |
| 敷地内でUターン出来、4台駐車可能な低燃費ハウスのシンプルモダン住宅 | |
|
容積率:200% 建蔽率:60% |
建物面積:1F:46.37㎡ 2F:46.37㎡ 98.53㎡(29.80坪) |
|
建物価額 : |
1,996万円~ |

野洲市立篠原小学校
篠原コミュニティーセンター
野洲市立篠原こども園
平和堂 篠原店
野洲市立野洲北中学校